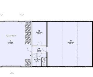
Galerie: Ve vodáckém areálu Lídy Polesné vyroste nová loděnice

Zavřít fotogalerii
Zobrazit
Ve vodáckém areálu Lídy Polesné vyroste nová loděnice
Zobrazit
Zobrazit